Gemütliche Dachgeschoßwohnung in zentraler Lage
Anschrift
Preis
Objektinformationen
Ausstattung und Freiflächen
Beschreibung
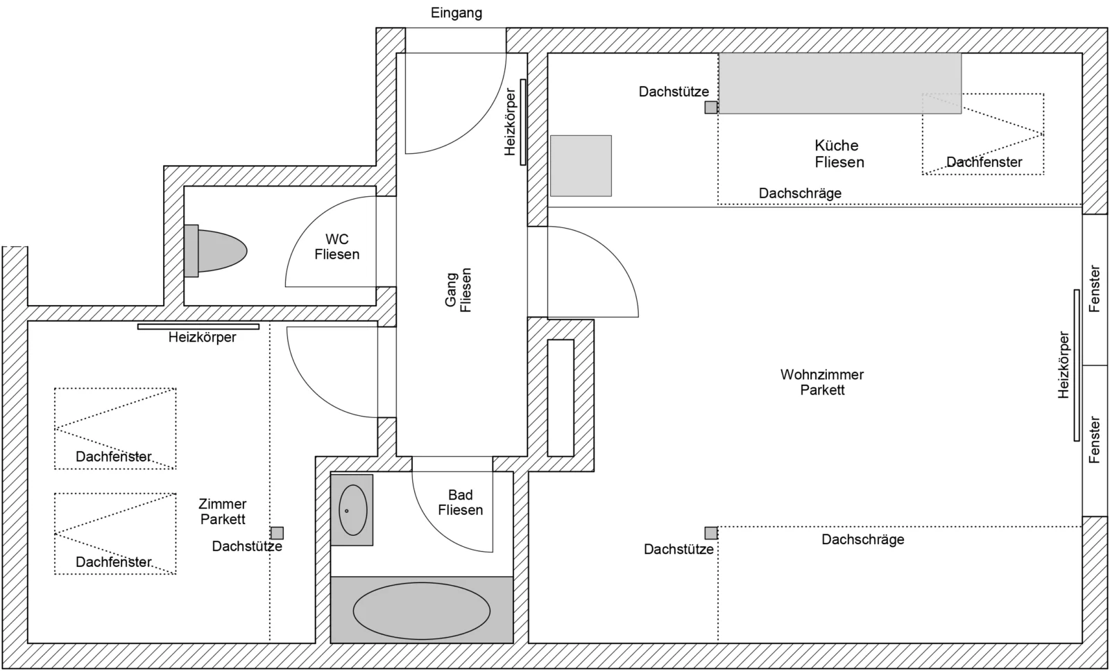
Diese charmante Dachgeschoßwohnung befindet sich im 4. Stock eines gepflegten Altbaus in der Elisabethinergasse, nur wenige Schritte von zahlreichen Busverbindungen sowie vielfältigen Einkaufsmöglichkeiten und Gastronomie entfernt. Die Wohnung besticht durch ihre zentrale Lage und den besonderen Charakter des ausgebauten Dachgeschoßes. Der Zugang erfolgt über das Stiegenhaus – ein Lift ist nicht vorhanden. Vom Vorraum aus gelangt man in ein helles Wohn-Esszimmer mit integrierter Küchenzeile, ein ruhiges Schlafzimmer, ein Badezimmer mit Badewanne sowie ein separates WC.
Nur wenige Schritte entfernt lädt der weitläufige Oeverseepark zum Verweilen ein. Ob gemütliche Spaziergänge oder einfach eine kleine Auszeit im Grünen – hier finden Sie mitten in der Stadt eine Oase der Ruhe.









